Schöne 3-Zimmer Wohnung im westlichen Ringgebiet

Hausansicht Hauseingang Hauseingang Grundriss Expose Vermietung

Objektbeschreibung

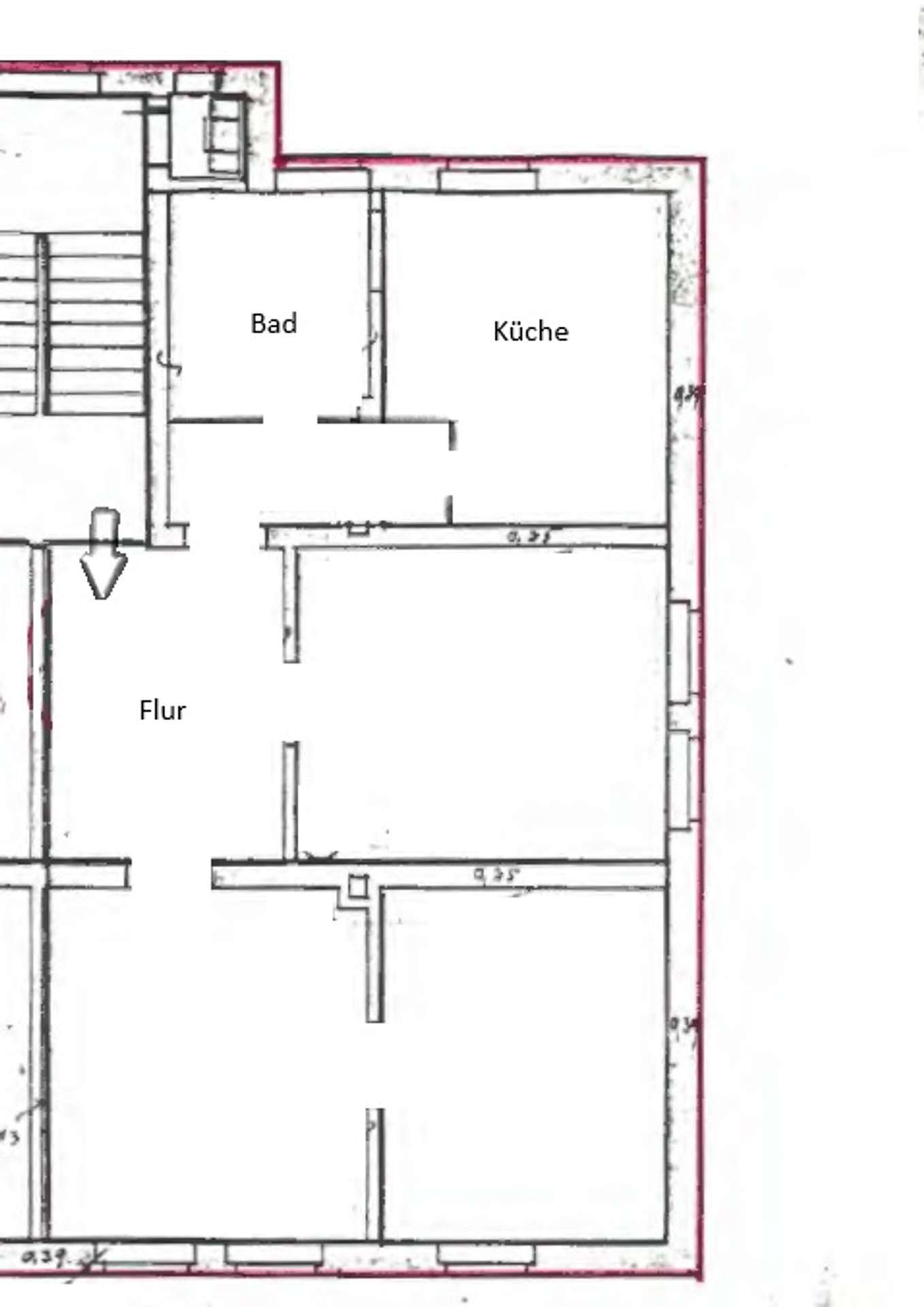
Diese schöne 3-Zimmer Wohnung mit ca. 87 m² Wohnfläche befindet sich im 2. Obergeschoss eines Mehrfamilienhauses im beliebten Westlichen Ringgebiet in Braunschweig. Die Wohnung verfügt über ein Schlafzimmer, eine Küche und ein Badezimmer. Vom Wohnzimmer aus gelangen Sie über einen Durchgang in das Ess-/Arbeitszimmer, das mit einer Schiebetür räumlich abgetrennt werden könnte. Die Raumaufteilung können Sie außerdem dem Grundriss entnehmen.
Die Wohnung steht frühestens ab dem 01.06.2026 zur Verfügung.

Objektdaten

Objekt-ID
167146204
Objekttyp
Wohnung
Adresse
Bürgerstraße 17
38118 Braunschweig
(Westliches Ringgebiet)
Etage
2
Wohnfläche ca.
87 m²
Zimmer
3
Badezimmer
1
Heizungsart
Etagenheizung
Verfügbar ab
01.06.2026
Kaution
2085
Kaltmiete
695,00 EUR
Nebenkosten
100,00 EUR
Heizkosten
nicht in den Nebenkosten enthalten
Warmmiete
795,00 EUR

Ausstattung / Merkmale

  • Keller

Energieausweis

Der vollständige Energieausweis liegt bei der Besichtigung vor.

Energieausweistyp
Verbrauchs­ausweis
Ausstellungsdatum
nach dem 1.5.2014
Baujahr lt. Energieausweis
1889
Primärenergieträger
Erdgas leicht
Endenergie­verbrauch
102,04 kWh/(m²·a)
Energie­effizienz­klasse
D

Lage

Das westliche Ringgebiet in Braunschweig ist ein lebendiger Stadtteil mit hoher Bevölkerungsdichte und einer guten Mischung aus Familien, jungen Berufstätigen und Senioren. Verschiedene Bushaltestellen sind fußläufig in weniger als 10 Minuten erreichbar und sorgen für eine ausgezeichnete öffentliche Verkehrsanbindung. Die Gegend bietet eine gute Infrastruktur mit Einkaufsmöglichkeiten und Dienstleistungen des täglichen Bedarfs.

Sie sehen gerade einen Platzhalterinhalt von Google Maps. Um auf den eigentlichen Inhalt zuzugreifen, klicken Sie auf die Schaltfläche unten. Bitte beachten Sie, dass dabei Daten an Drittanbieter weitergegeben werden.

Mehr Informationen

Sie sehen gerade einen Platzhalterinhalt von Google Maps. Um auf den eigentlichen Inhalt zuzugreifen, klicken Sie auf die Schaltfläche unten. Bitte beachten Sie, dass dabei Daten an Drittanbieter weitergegeben werden.

Mehr Informationen

KONTAKT

* Pflichtangaben
 SSL-verschlüsselt

Schadensmeldung

Haben Sie Schäden in Ihrer Wohnung oder Ihrem Haus bemerkt? Nutzen Sie gerne unser Formular, um uns darüber zu informieren, oder kontaktieren Sie uns während der Öffnungszeiten telefonisch.