Vier Reihenhäuser & drei Wohnungen im Bauernhaus mit Altbauflair und weitläufigen Gärten in Rautheim

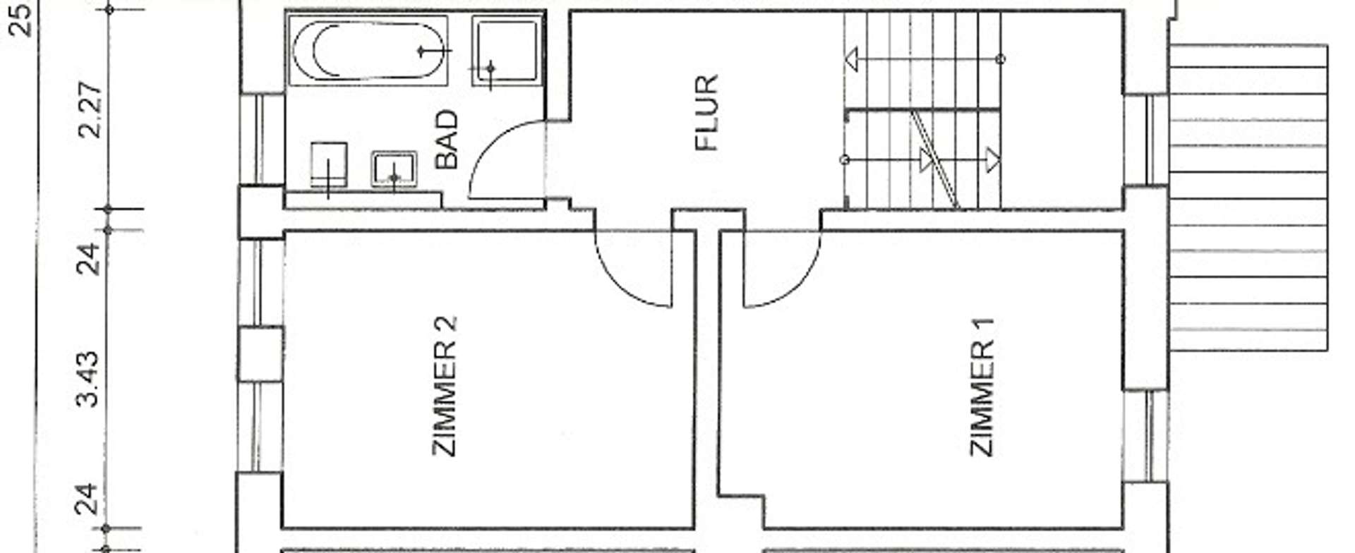
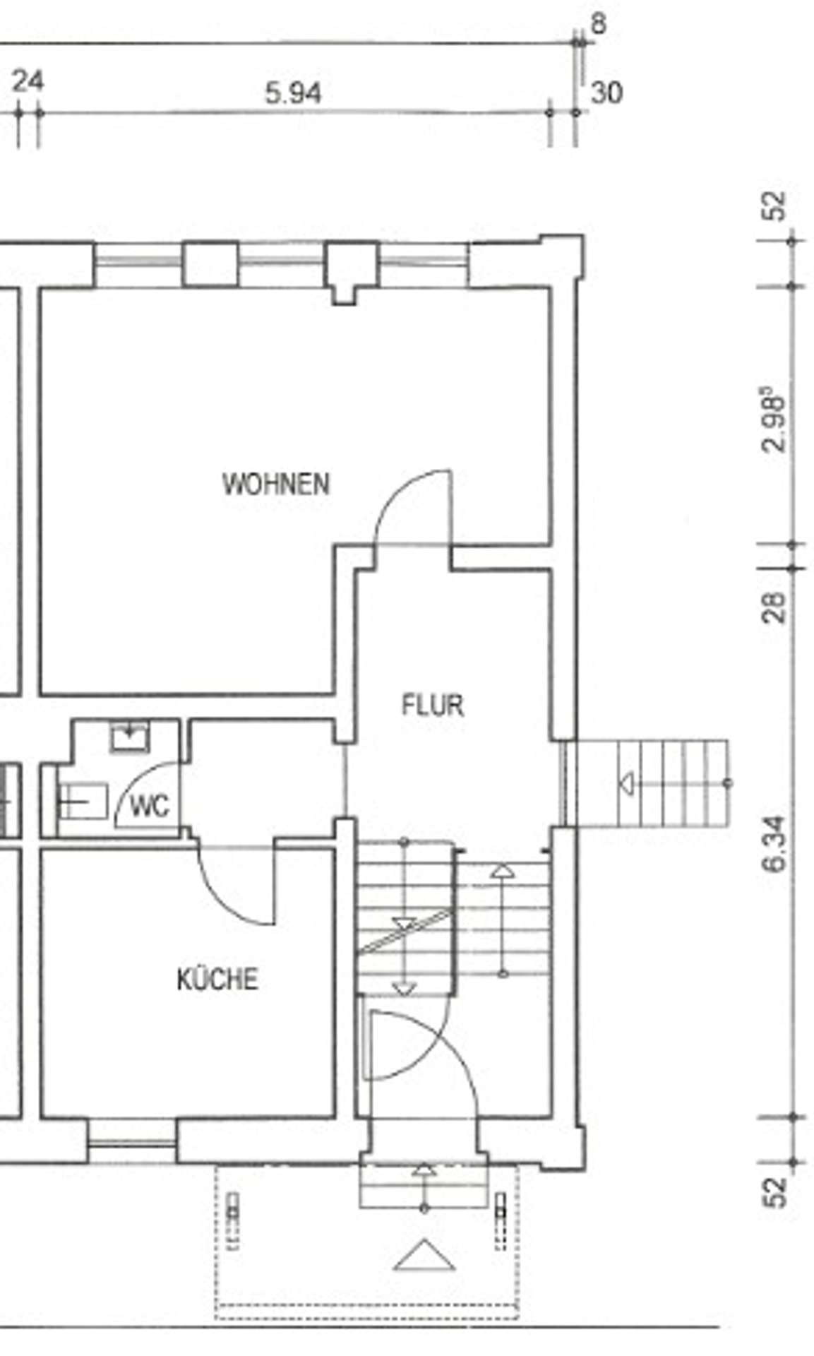
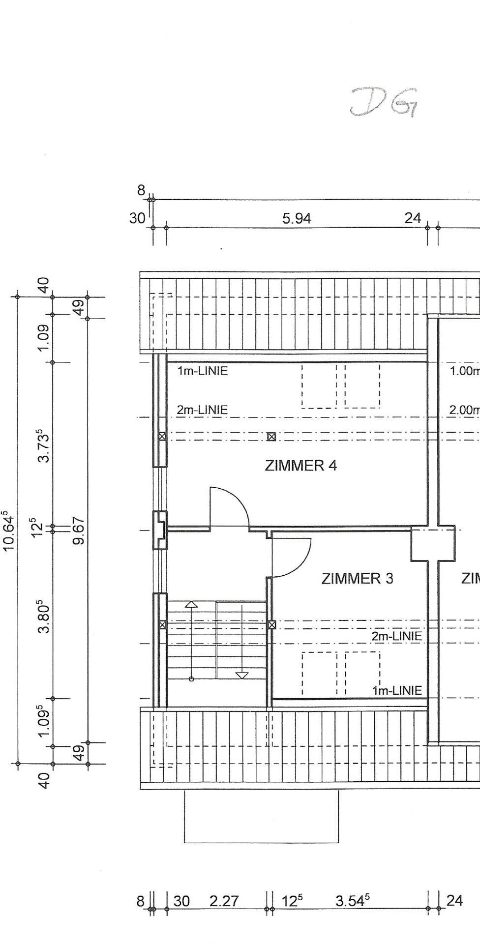
Reihenhäuser Vier Reihenhäuser mit Eingänge Hinterhaus drei Wohnungen Hauseingang Reihenhaus Beispie Bild Garten Reihenhaus Beispiel Reihenhaus Seitenprofil Pforte zum Gartenbereich Bild 0V3A8547 Bild 0V3A8607 Bild Bild Parkplätze Beispiel Reihenhaus Grundriss Grundriss 1 1 Grundriss Wohnungen Exposé Anhang

Objektbeschreibung

Einmalige Gelegenheit: Ein Ensemble mit Seele und Perspektive.
Solche Immobilien sind selten.
Bereits beim Betreten des Grundstücks spüren Sie die besondere Atmosphäre: Die warmen, rötlichen Backsteine, die sich in der Sonne aufheizen, erzählen Geschichten vergangener Zeiten und verleihen dem,Ensemble eine unverwechselbare Ausstrahlung. Ein Ort mit Charakter, der sich deutlich von der Masse abhebt.
Im vorderen Bereich erwarten Sie vier autarke Reihenhäuser – jedes mit eigenem Eingang und eigenem Gartenabschnitt. Mit jeweils fünf Zimmern, ausgebautem Dachgeschoss und vollständiger Unterkellerung bieten sie großzügigen Raum für Familienleben, Rückzug und Entfaltung. Die durchdachten Grundrisse schaffen ein harmonisches Wohngefühl, während die aufwendigen Sanierungen bei Mieterwechseln den gepflegten Zustand unterstreichen.
Im hinteren Teil des Grundstücks eröffnet sich ein weiteres Highlight: ein Mehrfamilienhaus mit drei Wohneinheiten, deren Balkone einen freien Blick über die weiten, umliegenden Felder bieten. Hier genießen die Bewohner Ruhe, Natur und einen Hauch von Freiheit und das Tag für Tag.
Das natürlich gewachsene Grundstück rundet das Gesamtbild ab und verleiht der Immobilie eine gewachsene, authentische Qualität, die heute kaum noch zu finden ist.
Ob als langfristige gesunde Kapitalanlage, Mehrgenerationenlösung oder zur teilweisen Eigennutzung – dieses Ensemble bietet vielfältige Möglichkeiten. Doch eines ist sicher: Eine solche Kombination aus Lage, Charme und Substanz findet man nur selten.

Objektdaten

Objekt-ID
167274761
Objekttyp
Haus
Adresse
38126 Braunschweig
(Südstadt-Rautheim-Mascherode)
Wohnfläche ca.
716 m²
Grund­stück ca.
3.332 m²
Zimmer
27
Wesentlicher Energieträger
Gas
Baujahr
1890
Zustand
modernisiert
Stellplätze gesamt
8
Käufer­provision
Der vom Käufer zu zahlende Provisionsanteil beträgt 5,95 % einschließlich Mehrwertsteuer des Kaufpreises nach Abschluss eines notariellen Kaufvertrages.
Kaufpreis
1.600.000 EUR

Ausstattung / Merkmale

  • Gäste-WC
  • Keller

Energieausweis

Der vollständige Energieausweis liegt bei der Besichtigung vor.

Lage

Ein besonderes Highlight ist die direkte Feldrandlage des Objekts. Hier genießen Sie eine naturnahe Umgebung mit viel Freiraum und gleichzeitig den Vorteilen einer gut ausgebauten Infrastruktur.

Sie sehen gerade einen Platzhalterinhalt von Google Maps. Um auf den eigentlichen Inhalt zuzugreifen, klicken Sie auf die Schaltfläche unten. Bitte beachten Sie, dass dabei Daten an Drittanbieter weitergegeben werden.

Mehr Informationen

Die dargestellte Position der Immobilie ist nur eine ungefähre Angabe.

Sie sehen gerade einen Platzhalterinhalt von Google Maps. Um auf den eigentlichen Inhalt zuzugreifen, klicken Sie auf die Schaltfläche unten. Bitte beachten Sie, dass dabei Daten an Drittanbieter weitergegeben werden.

Mehr Informationen

KONTAKT

* Pflichtangaben
 SSL-verschlüsselt

Schadensmeldung

Haben Sie Schäden in Ihrer Wohnung oder Ihrem Haus bemerkt? Nutzen Sie gerne unser Formular, um uns darüber zu informieren, oder kontaktieren Sie uns während der Öffnungszeiten telefonisch.