Attraktives Mehrfamilienhaus mit 10 Einheiten und 10 Garagen mitten im beliebten Kanzlerfeld

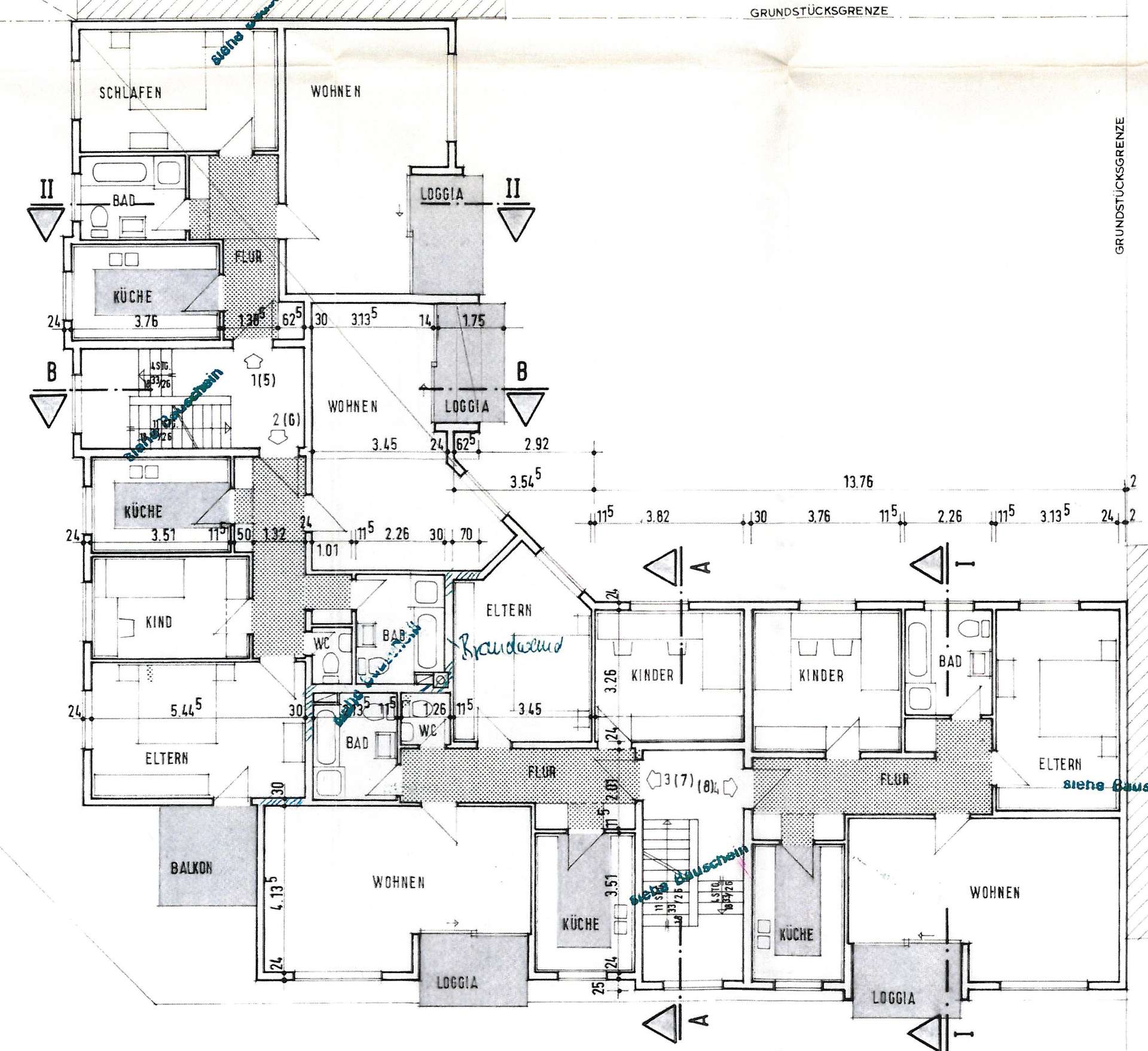
Hausansicht Hausansicht Hausansicht Wohnzimmer Beispiel Wohnzimmer Beispiel Balkon Beispiel Badezimmer Beispiel Schlafzimmer Beispiel Küche Beispiel Arbeitszimmer Beispiel Flur Beispiel Grundriss EG für Expose Grundriss 1&2OG für Expose Grundriss DG für Expose Exposé Anhang Immobilienbewert

Objektbeschreibung

Das Objekt ist ein repräsentativ anzusehendes Mehrfamilienhaus im Westen Braunschweigs, gebaut wurde das Haus 1986. Das Haus hat keinen Keller, daher sind im Erdgeschoß Garagen und im hinteren Teil die Nutzräume für die jeweiligen Wohnungen untergebracht. Im 1. und 2.Obergeschoß sind pro Hauseingang (2 Treppenhäuser) vier Wohnungen vorhanden. Im Dachgeschoß gibt es je eine Wohnung, Bodenkammern und zusätzlich eine Freifläche zur Trocknung von Wäsche oder ähnlichem. Alle Wohnungen haben Balkone. Insgesamt eine gepflegte Anlage, begrünter Innenhof, mit zumeist langjährigen Mietern.

Dieses Haus wurde auf einem Erbbaurechtsgrundstück errichtet. Der Vertrag wurde 1982 geschlossen und läuft 99 Jahre, also bis 2081. Der halbjährlich zu zahlende Erbbauzins beträgt derzeit 841,07 Euro.
Der Erbpachtherausgeber stimmt einer Beleihungsgrenze von 90 % des Kaufpreises zu.

Fordern Sie bitte bei Interesse ein ausführlicheres Expose an, in dem die Grundrisse vorhanden sind und weitere Einzelheiten zu sehen sind.

Objektdaten

Objekt-ID
136953784
Objekttypen
Mehrfamilienhaus, Renditeobjekt
Adresse
38116 Braunschweig
(Lehndorf-Watenbüttel)
Etagen im Haus
3
Wohnfläche ca.
754 m²
Vermietbare Fläche ca.
754 m²
Grund­stück ca.
735 m²
Heizungsart
Zentralheizung
Baujahr
1986
Zustand
gepflegt
Ausstattung
Standard
Stellplätze gesamt
10
Käufer­provision
Der vom Käufer zu zahlende Provisionsanteil beträgt 3,95 % einschließlich Mehrwertsteuer des Kaufpreises nach Abschluss eines notariellen Kaufvertrages.
Mieteinnahmen (Ist)
61.137,48 EUR pro Jahr
Kaufpreis
1.100.000 EUR

Ausstattung / Merkmale

Energieausweis

Der vollständige Energieausweis liegt bei der Besichtigung vor.

Energieausweistyp
Verbrauchs­ausweis
Ausstellungsdatum
vor dem 1.5.2014
Baujahr lt. Energieausweis
1986
Primärenergieträger
Erdgas schwer
Endenergie­verbrauch
114,00 kWh/(m²·a)
Warmwasser enthalten
ja

Lage

Das Kanzlerfeld liegt im Westen Braunschweigs und ist ein gefragter Standort. Versorgungseinrichtungen sowie Ärzte, Kindergarten und Schule sind hier oder in Lehndorf vorhanden. Die Verkehrsanbindung ist sehr gut. Zur Tangente sind es nur wenige Minuten und es fahren Busse in die Stadt. Naherholung und Freizeit können z.B. durch Radtouren in die benachbarte Natur ausgelebt werden. Daneben gibt es auch Sportvereine vor Ort.

Sie sehen gerade einen Platzhalterinhalt von Google Maps. Um auf den eigentlichen Inhalt zuzugreifen, klicken Sie auf die Schaltfläche unten. Bitte beachten Sie, dass dabei Daten an Drittanbieter weitergegeben werden.

Mehr Informationen

Die dargestellte Position der Immobilie ist nur eine ungefähre Angabe.

Sie sehen gerade einen Platzhalterinhalt von Google Maps. Um auf den eigentlichen Inhalt zuzugreifen, klicken Sie auf die Schaltfläche unten. Bitte beachten Sie, dass dabei Daten an Drittanbieter weitergegeben werden.

Mehr Informationen

KONTAKT

* Pflichtangaben
 SSL-verschlüsselt

Schadensmeldung

Haben Sie Schäden in Ihrer Wohnung oder Ihrem Haus bemerkt? Nutzen Sie gerne unser Formular, um uns darüber zu informieren, oder kontaktieren Sie uns während der Öffnungszeiten telefonisch.